ID CP3011487

Acces Imediat Centura Bucuresti Chitila - Rudeni

ID CP3011487

440,510 €

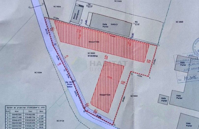
Teren de 3,038 mp de vânzare
Est, Chitila
3,038 mp

Vă propunem spre vânzare un teren intravilan în suprafață de 3.038 mp, situat strategic în zona Rudeni – Chitila, unul dintre cele mai dinamice hub-uri logistice din nord-vestul Bucureștiului.

Marele avantaj al acestei proprietăți este PUD-ul (Plan Urbanistic de Detaliu) deja aprobat, ceea ce elimină timpii de așteptare birocratici și permite demararea rapidă a proiectului.

Localizare Strategică: Amplasat în imediata vecinătate a Șoselei de Centură, terenul oferă acces facil către A1 (București-Pitești), DN7 și viitoarea autostradă A0. Este ideal pentru afaceri care depind de logistică și transport rapid.

Ready-to-Build: Existența PUD-ului aprobat reprezintă o economie majoră de timp (aproximativ 6-12 luni) și bani pentru viitorul proprietar.

Accesibilitate: Accesul la șosea se face din imediata vecinătate, facilitând intrarea camioanelor sau a utilajelor de mare tonaj.

Suprafață Generoasă: Cei 3.038 mp oferă o amprentă la sol suficientă pentru o hală de dimensiuni medii, platformă betonată sau spațiu mixt (birouri + depozitare). Proiectul prevede construirea a doua hale.

Pentru mai multe informatii va recomandam sa ne contactati telefonic.

___________________________________________________________________________

ℹ️Buget insuficient? La HABITAT Brokers ai serviciu de finanțare inclus:

Identificăm tipul de credit ideal.

Simulăm rata. Comparăm ofertele actuale din piață.

Depunem dosarul și stăm în legătură cu banca până la aprobare.

Totul cu ZERO costuri suplimentare.

Contactează-ne azi pentru o analiză gratuită!

Citește mai mult

  • Tip teren
    Construcții
  • Suprafață teren
    3,038 mp
  • Front stradal
    90.0 m
  • Număr fronturi stradale
    1
  • Deschidere la
    Drum de servitute
  • Lățime drum acces
    7.0 m
  • Clasificare
    Intravilan
  • Valoare incidență
    16.11
  • Disponibilitate
    Imediat
  • CUT
    9.0
  • POT (%)
    60.0
  • Autorizație de construcție
    Da
  • PUD Aprobat
    Da
  • Certificat de urbanism
    Da

Facilități

Acces auto
Iluminat stradal
Mijloace de transport în comun
Oportunitate de investiții
Parcelabil
Străzi asfaltate
Străzi betonate
Utilități în zonă
Marius Cojocariu - HABITAT Brokers
Marius Cojocariu
Sr. Broker - Account Manager

0728973745


Solicită chiar acum o vizionare
Telefon
Sună acum Solicită vizionare
Necesare:

Site-ul nu poate funcționa corect fără aceste cookie-uri. Vezi cookie-urile

Statistică:

Strângem statistici anonime despre voi, vizitatorii unici, pentru a vă îmbunătăți experiența dumneavoastră. Vezi cookie-urile

Marketing:

Pentru a ne promova mai eficient serviciile noastre, folosim cookies pentru a vă identifica și a vă oferi proprietăți și servicii personalizate. Vezi cookie-urile

Acest site folosește cookies, află detalii. Alege ce tipuri de cookies dorești să permitem: