ID CP2957958

Vila individuala 4 camere Otopeni-23 August

ID CP2957958

360,000 €

Casă / Vilă cu 4 camere de vânzare
Central, Otopeni
140 mp
2026

Vilă individuală amplasată pe un teren de 360 mp, într-o zonă rezidențială liniștită din Otopeni – cartierul 23 August, cu acces rapid către principalele artere din nordul Capitalei. Proprietatea oferă o compartimentare practică, spații generoase și toate utilitățile racordate, fiind potrivită pentru o familie care își dorește confort și accesibilitate.

Compartimentare

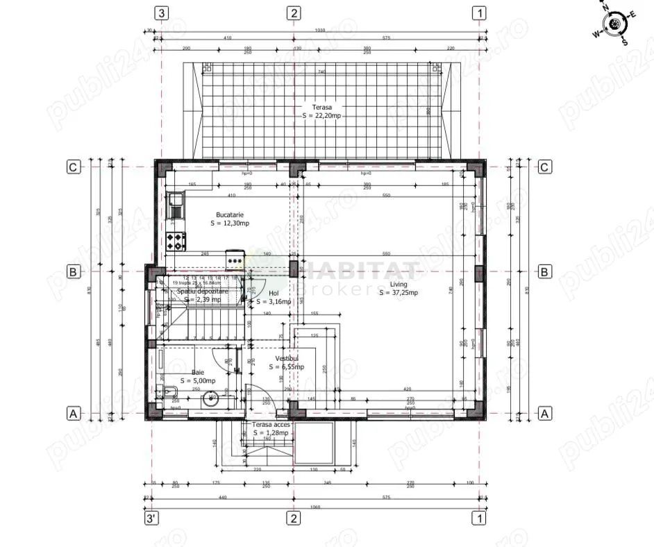
Parter

Living generos de 37 mp, cu ieșire directă pe terasa exterioară

Bucătărie open-space (cu posibilitatea de a fi închisă)

Baie

Spațiu de depozitare

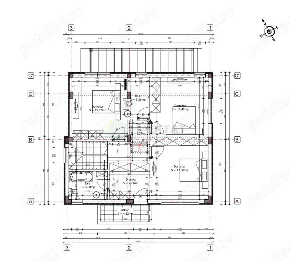
Etaj

Dormitor matrimonial cu dressing, baie proprie și balcon

Două dormitoare suplimentare

Baie pe hol

Pod

Spațiu generos de depozitare, cu acces prin chepeng

Date generale

Regim de înălțime: P + 1 + Pod

Teren: 360 mp

Curte proprie

2 locuri de parcare exterioare

Utilități

Imobilul este racordat la toate utilitățile: curent electric, gaz, apă curentă, canalizare.

Localizare

Termen de finalizare mai-iunie 2026.

Proprietatea este situată într-o zonă bine conectată, cu acces rapid către DN1. În proximitate se află magazine, săli de sport, restaurante, școli și grădinițe, iar strada este complet asfaltată, oferind acces facil în orice moment.

Citește mai mult

  • Număr camere
    4
  • Dormitoare
    3
  • Număr bucătării
    1
  • Număr băi
    3
  • Geam la baie
    Da
  • Număr balcoane
    1
  • Număr terase
    1
  • Număr locuri parcare
    2
  • Disponibilitate
    Imediat
  • Tip casă
    Individual
  • Stare interior
    Ultrafinisat
  • Anul finisării
    2026
  • Suprafață utilă
    140 mp
  • Suprafață construită
    180 mp
  • Suprafață construită la sol (Amprentă)
    86.0 mp
  • Suprafață teren
    360 mp
  • Suprafață curte
    360 mp
  • Suprafață curte liberă
    260 mp
  • Suprafață terasă
    22 mp
  • Deschidere
    20 m
  • Acoperiș
    Tablă
  • Stadiu construcție
    În construcție
  • An construcție
    2026
  • Construcție nouă
    Da
  • Tip construcție
    Cărămidă
  • Număr etaje clădire
    1
  • Are pod
    Da
  • Clasă Energetică
    A

Facilități

Acces pentru persoane cu dizabilități
Acoperiș
Apă
Apometre
Bucătărie deschisă
Cabină de duș
Cadă
Canalizare
CATV
Centrală proprie
Contor căldură
Contor electric
Contor gaz
Curent
Curent trifazic (380V)
Curte
Dressing
Faianță
Ferestre care se deschid
Ferestre PVC
Gaz
Geamuri tripan
Grădină proprie
Gresie
Încălzire prin pardoseală
Izolație exterioară
Mijloace de transport în comun
Nemobilat
Parcare deschisă
Parchet
Scară interioară
Străzi asfaltate
Ușă intrare metal
Uși interior MDF
Vedere spre oraș
Vopsea lavabilă
WC Serviciu
Zonă pentru barbeque
Madalina Dragusin - HABITAT Brokers
Madalina Dragusin
Senior Real Estate Broker North Bucharest

0723378105


Solicită chiar acum o vizionare
Telefon
Sună acum Solicită vizionare
Necesare:

Site-ul nu poate funcționa corect fără aceste cookie-uri. Vezi cookie-urile

Statistică:

Strângem statistici anonime despre voi, vizitatorii unici, pentru a vă îmbunătăți experiența dumneavoastră. Vezi cookie-urile

Marketing:

Pentru a ne promova mai eficient serviciile noastre, folosim cookies pentru a vă identifica și a vă oferi proprietăți și servicii personalizate. Vezi cookie-urile

Acest site folosește cookies, află detalii. Alege ce tipuri de cookies dorești să permitem: