ID CP2948731

Vila individuala 4 camere | Teren 425 mp

ID CP2948731

329,000 €

Casă / Vilă cu 4 camere de vânzare
Tunari
155 mp
2026

Propunem spre vânzare o vilă individuală cu regim de înălțime P+1, amplasată într-o zonă liniștită din Tunari. Imobilul se află în fază de execuție, cu predare estimată la cheie în aprilie 2026, oferind viitorului proprietar posibilitatea de a alege finisajele interioare.

Construcție și specificații tehnice

Locuința este proiectată cu accent pe rezistență, eficiență energetică și confort pe termen lung.

Structură și materiale

Zidărie din BCA, structură de rezistență realizată cu fier de 14 și beton C16/20

Acoperiș din țiglă metalică Wetterbest (0,5 mm), cu garanție 15 ani

Confort și eficiență

Încălzire în pardoseală la ambele niveluri, cu termostat individual în fiecare cameră

Tâmplărie Salamander cu 6 camere și geam tripan

Centrală termică pe gaz și boiler

Instalație pregătită pentru montarea unei pompe de căldură și pentru panouri solare

Suprafață și compartimentare

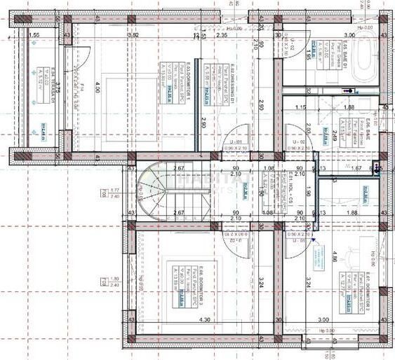
Proprietatea este amplasată pe un teren de 432 mp și are o suprafață utilă totală de 155 mp.

Parter: living generos, bucătărie, hol, baie, cameră tehnică

Etaj: două dormitoare, baie pe hol, dormitor matrimonial cu baie proprie și dressing

Suprafața construită la sol este de 121,76 mp.

Localizare

Imobilul beneficiază de acces rapid către principalele puncte de interes din nordul Capitalei:

Zone comerciale și de relaxare: Băneasa Shopping City, Therme București, magazinele Lidl și Penny

Instituții de învățământ: American International School of Bucharest

Conexiuni rutiere: Autostrada A3 și Centura București

Transport aerian: Aeroportul Internațional Henri Coandă

Preț: 329.000 EUR

Vânzarea se realizează de persoană fizică, fără TVA suplimentar.

Citește mai mult

  • Număr camere
    4
  • Dormitoare
    3
  • Număr bucătării
    1
  • Număr băi
    3
  • Geam la baie
    Da
  • Număr balcoane
    1
  • Număr terase
    1
  • Număr locuri parcare
    4
  • Disponibilitate
    Imediat
  • Tip casă
    Individual
  • Stare interior
    Ultrafinisat
  • Anul finisării
    2026
  • Suprafață utilă
    155 mp
  • Suprafață construită
    213 mp
  • Suprafață construită la sol (Amprentă)
    106.0 mp
  • Suprafață teren
    423 mp
  • Suprafață curte
    423 mp
  • Suprafață curte liberă
    323 mp
  • Suprafață terasă
    15 mp
  • Deschidere
    20 m
  • Acoperiș
    Țiglă
  • Stadiu construcție
    În construcție
  • An construcție
    2026
  • Construcție nouă
    Da
  • Tip construcție
    BCA
  • Număr etaje clădire
    1

Facilități

Acces pentru persoane cu dizabilități
Acoperiș
Apă
Apometre
Bucătărie închisă
Cabină de duș
Cadă
Canalizare
CATV
Centrală imobil
Centrală proprie
Contor căldură
Contor electric
Contor gaz
Curent
Curent trifazic (380V)
Curte
Dressing
Faianță
Ferestre care se deschid
Ferestre PVC
Gaz
Geamuri tripan
Grădină proprie
Gresie
Iluminat stradal
Încălzire prin pardoseală
Izolație exterioară
Mijloace de transport în comun
Nemobilat
Parcare deschisă
Parchet
Scară interioară
Străzi asfaltate
Telecomandă poartă acces auto
Ușă intrare metal
Uși interior MDF
Vedere panoramică
Vopsea lavabilă
WC Serviciu
Zonă pentru barbeque
Madalina Dragusin - HABITAT Brokers
Madalina Dragusin
Senior Real Estate Broker North Bucharest

0723378105


Solicită chiar acum o vizionare
Telefon
Sună acum Solicită vizionare
Necesare:

Site-ul nu poate funcționa corect fără aceste cookie-uri. Vezi cookie-urile

Statistică:

Strângem statistici anonime despre voi, vizitatorii unici, pentru a vă îmbunătăți experiența dumneavoastră. Vezi cookie-urile

Marketing:

Pentru a ne promova mai eficient serviciile noastre, folosim cookies pentru a vă identifica și a vă oferi proprietăți și servicii personalizate. Vezi cookie-urile

Acest site folosește cookies, află detalii. Alege ce tipuri de cookies dorești să permitem: